Nowoczesny, drewniany, energooszczędny dom jednorodzinny

Sava #4

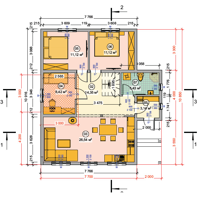
Sava #4 to energooszczędny dom jednorodzinny o powierzchni użytkowej ok. 127 m² (parter + poddasze). To idealne miejsce dla rodziny, która ceni sobie przestrzeń, naturalne światło i funkcjonalność wnętrz.

Powierzchnia
127 m²
bez pozwolenia na budowę do 70 m²
szybka budowa z prefabrykatów
energooszczędny
Powierzchnia
127 m²
Sypialnie
3
Łazienki
1
Garaże
0

Co oferujemy?

Dom w stanie deweloperskim – to budynek z pełną konstrukcją, stolarką okienną i drzwiową oraz kompletem instalacji wewnętrznych (elektrycznej, wodno-kanalizacyjnej,). Wewnątrz przygotowany do wykończenia – ściany otynkowane,

Projekt przewidziany w procedurze na zgłoszenie – bez zbędnych formalności! Nie wymaga pozwolenia na budowę.

Cena netto:  347 445zł

Funkcjonalny układ pomieszczeń

Parter obejmuje przestronny salon połączony z kuchnią i jadalnią, łazienkę oraz trzy sypialnie.

Opis konstrukcji

Ściany zewnętrzne

Topowa izolacja U=0,15 W/m²K
  • Poszycie wewnętrzne: Płyta gipsowo-wiórowa Knauf Diament.
  • Kontr-ocieplenie: Wełna Knauf Akustik Board 50 mm.
  • Konstrukcja szkieletowa: Drewno Sodra 145×45 mm.
  • Ocieplenie: Wełna mineralna 150 mm.
  • Wiatroizolacja: Corotop Blue 140g.
  • Paraizolacja  Corotop Metallic, 80 g.
  • Płyta dociepleniowa Steico 4 mm.

U konkurencji? Często stosuje się słabsze materiały – to oznacza wyższe rachunki i gorszą efektywność energetyczną!

Dach

Kluczowy element izolacji
  • Ocieplenie: Wełna Knauf Akustik Board 200 mm.
  • Konstrukcja: Drewno Sodra 195×45 mm.
  • Wiatroizolacja: Corotop Blue 140g.
  • Paraizolacja  Corotop Metallic, 80 g.
  •  Poszycie wewnętrzne: Płyta gipsowo-wiórowa Knauf Diament
  • Pokrycie dachowe – Blachodachówka Blacha Pruszyński 25 lat gwarancji

Uwaga: Większość firm lekceważy dach, a to właśnie tam ucieka najwięcej ciepła!

Elewacja

Design i trwałość
  • Elewacja wykonana z tynku akrylowego firmy STO

Okna

Komfort i energooszczędność
  • 1 duże okno balkonowe
  • 5 okien rozwierano uchylnych
  • Kolorystyka: zewnętrzne dopasowane do elewacjiwewnętrzne białe
  • Profil Deco, ciepły montaż, ciepłe parapety – w standardzie
  • Współczynnik przenikania ciepła: U=0,9 W/m²K (zgodne z WT2021)

Dodatkowe elementy

Nasza przewaga
  • Wentylacja grawitacyjna – standard w naszych domach
  • Wykonana instalacja elektryczna
  • Wykonana instalacja wodno-kanalizacyjna
  • Spoinowanie ścian i sufitów wewnętrznych

Do wykonania

Dom jest niemal gotowy do zamieszkania!

Wystarczy:

  1. Wykonać płytę fundamentową wraz z wylewką
  2. Pomalować ściany
  3. Wybrać i zainstalować ogrzewanie

Pozostałe projekty